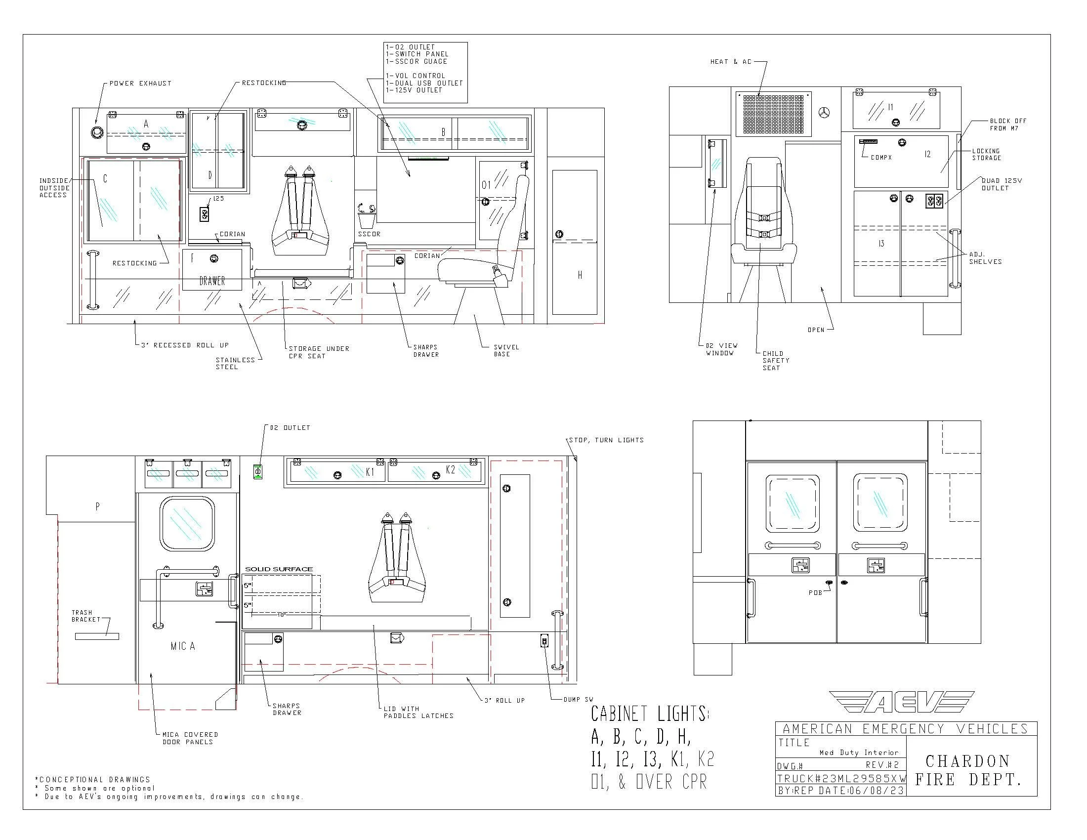
Chardon Twp FD View fullsize View fullsize View fullsize View fullsize View fullsize View fullsize View fullsize View fullsize